er å spise frokost i egen hage

er der flygelet mitt får plass

 er en lesekrok

hvor jeg kan nyte en god bok

Er en drøm vi kan realisere

Slik realiserer vi prosjekter

Se vår prosess

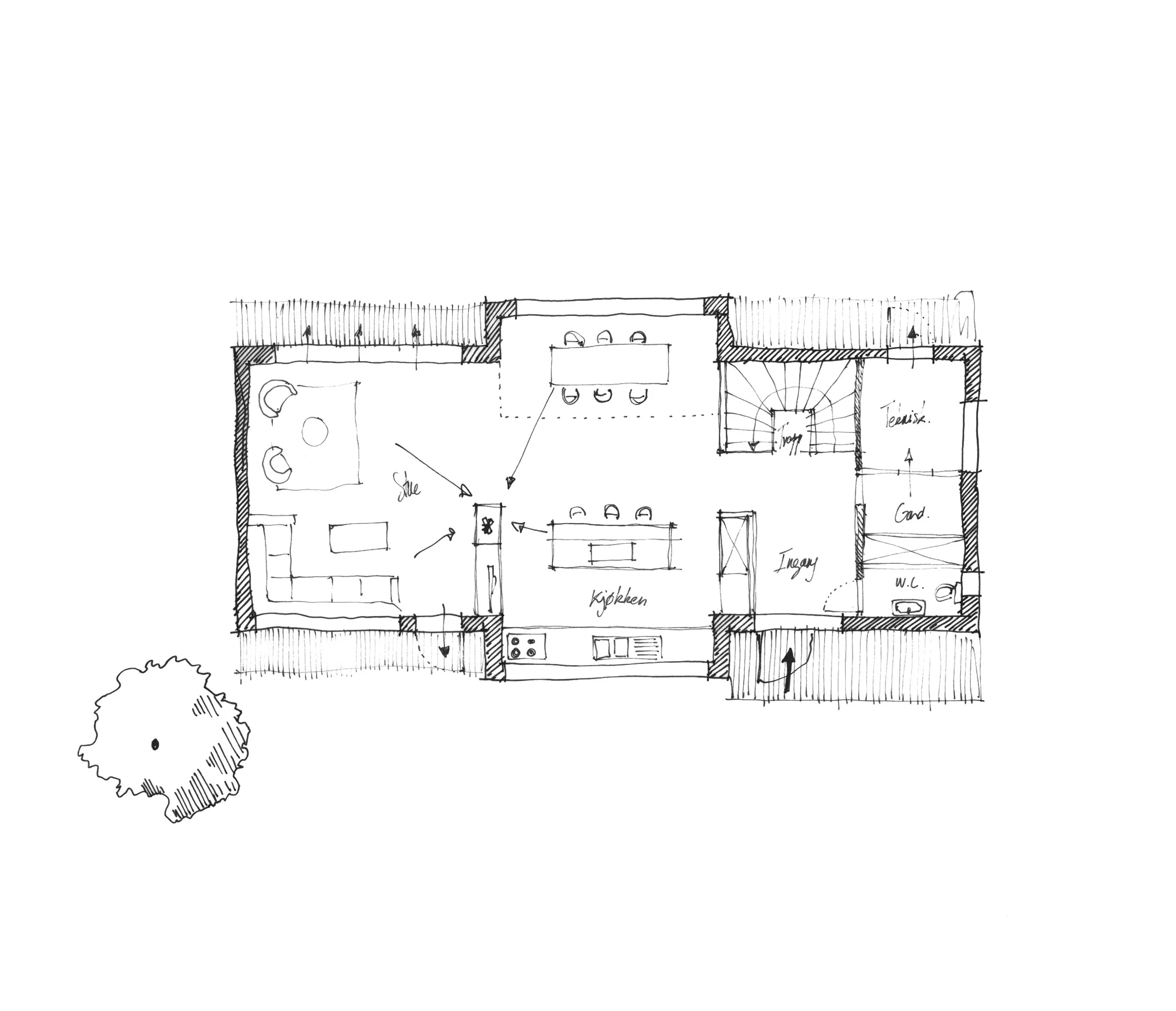
Vi skreddersyr ditt fristed

Fristed Arkitekter optimaliserer og skreddersyr ditt fristed

Å bo bra har større betydning for oss enn det vi tror.

Når man skal skape en god bolig, eller et godt sted å være, er det mye som skal tas hensyn til. Dette kan dreie seg om omgivelser, topografi, personlige behov, utsikt, innsyn, formspråk, kommunale og regionale forutsetninger, tekniske krav, vær og vind, sol og skygge, kostnader og ikke minst din egen personlige smak.

Å ta hensyn til alle disse faktorene og skreddersy et perfekt sted for deg er vår lidenskap, enten det dreier seg om nybygg eller eksisterende bygg som skal endres.

Mange tenker at det er dyrt å benytte seg av en arkitekt. Men av det totale byggebudsjettet koster en arkitekt i snitt rundt 5-7% av dette. Har du en drøm og har tenkt til å bygge, eller kanskje du allerede har et hus du ønsker å utnytte potensialet til, er det lurt å bruke litt tid og ressurser på å finne en løsning som er gjennomtenkt, smart og tar hensyn til dine behov! Kanskje du til og med ender opp med et billigere prosjekt totalt sett?

Alt i alt: det handler om å få skreddersydd sitt eget personlige fristed!

Heslebergtoppen – 01